Rustico in vendita

Collecorvino, Contrada Sant'Antonio
€ 135.000
253 Mq 253 Mq
3 bagni 3 bagni

Rustico in vendita

Collecorvino, Contrada Sant'Antonio

Descrizione annuncio

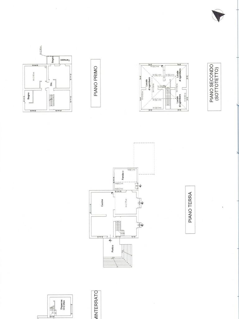
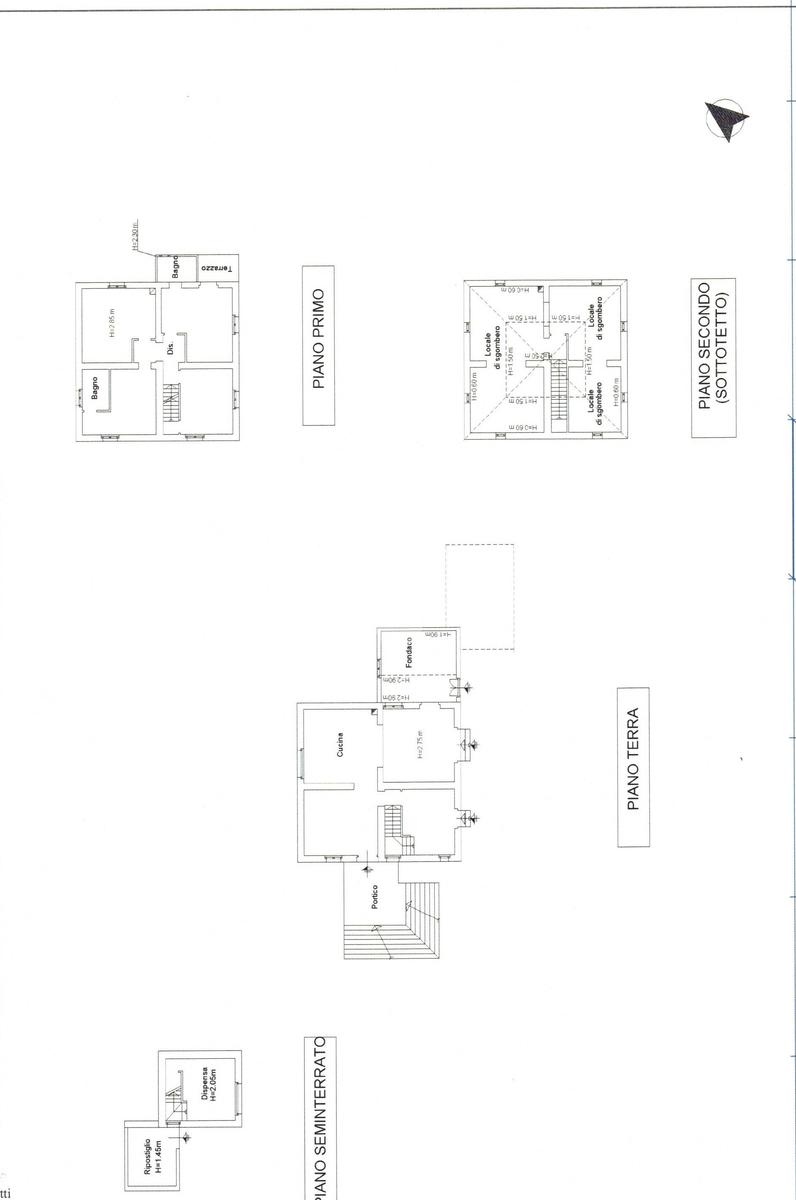
A Collecorvino, in contrada Sant’Antonio, caratteristico casale di 248 mq interni circondato da oltre 3 ettari di terreno.

La costruzione è realizzata con i tipici mattoni a vista e si sviluppa su tre livelli.

Il piano seminterrato è costituito da una cantina.

Al piano terra si trova la zona giorno composta da una sala da pranzo, una cucina con camino, un soggiorno, un bagno con doccia e una comoda lavanderia.

Al piano superiore trova spazio la zona notte con tre camere, di cui una con bagno interno, un ulteriore bagno e un terrazzino con vista panoramica.

Il riscaldamento è autonomo con caldaia a gas, termocamino e riscaldamento a pavimento.

La soluzione richiede lavori di ristrutturazione.

Se per acquistare la tua nuova casa hai bisogno di vendere il tuo attuale immobile contattaci per una consulenza con valutazione gratuita e senza impegno.

Per ulteriori informazioni rivolgersi a: Affiliato TECNOCASA Progetto Montesilvano - Umberto I Montesilvano (PE) Tel. 0854459904 e-mail: pehn8

Mostra tutto

Nelle vicinanze

Trasporto pubblico Trasporto pubblico
Via Massimo D'Antona
Via Massimo D'Antona
730 m
Viale dei Pini
Viale dei Pini
840 m
Supermercati Supermercati
Conad
2,6 Km
Negozi Negozi
Three Sisters
860 m
Ristoranti Ristoranti
Agriturismo Collecera
1,7 Km
Carmine
2,8 Km
Mostra tutto

Caratteristiche

Rif.:
61113610
Piano:
Su più livelli di 3
Totale piani:
3
Terrazzi:
1
Camere da letto:
3
Arredamento:
Parziale
Mostra tutto
Prezzo Prezzo
€ 135.000
Rata mutuo Rata mutuo
€ 638 / mese
Proponi il tuo prezzoProponi il tuo prezzo

Classe Energetica

Questo immobile è esente da classe energetica
Anno di costruzione:
1960
Riscaldamento:
Autonomo
Tipo impianto:
A pavimento
Tipo alimentazione:
GPL

Ti interessa visionare l'immobile?

Fissa un appuntamento  Fissa un appuntamento

Richiedi informazioni

Clicca su Leggi per aprire l'informativa
* Questi campi sono obbligatori

Calcola il tuo mutuo

Semplice e senza impegno
Anticipo

( % )
Mutuo

( % )

pochi semplici passi

inserisci i tuoi dati
Questionario completato
Grazie per aver richiesto un appuntamento senza impegno con un nostro Consulente del Credito e Assicurativo.

Hai inserito correttamente tutti i dati necessari e a breve riceverai una e-mail con un link da convalidare per inviare i tuoi dati.
Affiliato
Progetto Montesilvano D.I.
Corso Umberto I, 584 65015 Montesilvano (PE)

Il nostro staff


  • Angelo Vitali
    Affiliato

  • Maria Teresa Risorto
    Collaboratrice
Corso Umberto I, 584 65015 Montesilvano (PE)
Zona: Montesilvano
Mostra su mappa
Orari: dal lunedì al venerdì, 9.00/13.00 - 15.30/19.30; sabato 9.00/13.00 pomeriggio su appuntamento.
Affiliato
Progetto Montesilvano D.I.
Corso Umberto I, 584 65015 Montesilvano (PE)

2026 Tecnocasa Franchising S.p.A. - P. IVA 08365160152 - Via Monte Bianco 60/A 20089 Rozzano (MI). Ogni agenzia ha un proprio titolare ed è autonoma. Privacy policy | Policy utilizzo | Cookie policy