Trilocale in vendita

Collecorvino, Via Cesare Battisti
€ 45.000
3 locali 3 locali
119 Mq 119 Mq
1 bagno 1 bagno

Trilocale in vendita

Collecorvino, Via Cesare Battisti

Descrizione annuncio

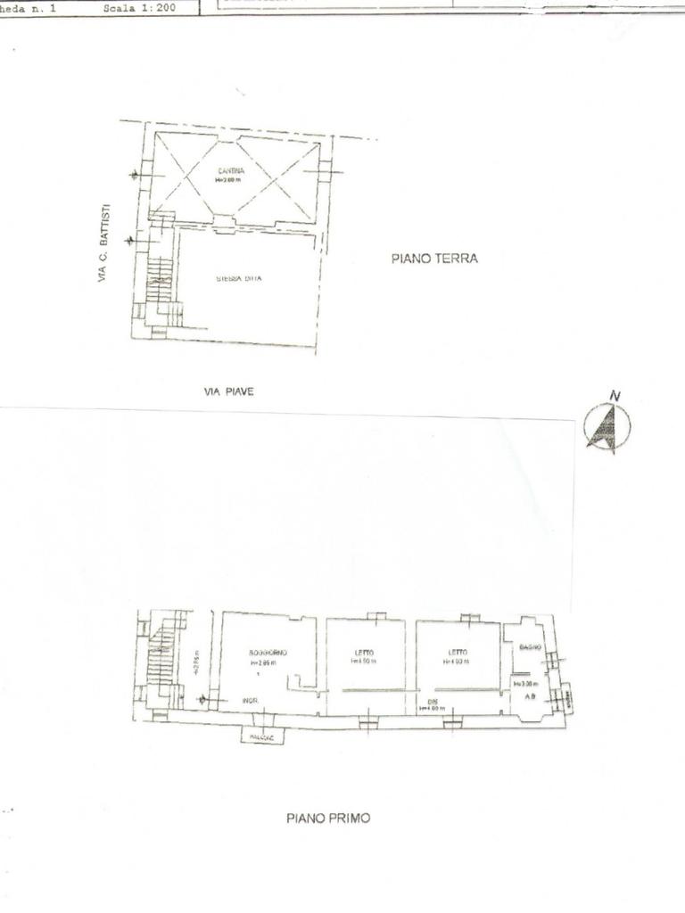
A Collecorvino appartamento di 118 mq interni al primo piano di un piccolo edificio.

La soluzione è composta da soggiorno con angolo cottura e camino, due camere matrimoniali e un bagno con antibagno.

Completa la proprietà una cantina di 54 mq al piano terra.

Se per acquistare la tua nuova casa hai bisogno di vendere il tuo attuale immobile contattaci per una consulenza con valutazione gratuita e senza impegno.

Per ulteriori informazioni rivolgersi a: Affiliato TECNOCASA Progetto Montesilvano - Umberto I Montesilvano (PE) Tel. 0854459904 e-mail: pehn8

Mostra tutto

Nelle vicinanze

Trasporto pubblico Trasporto pubblico
Via Massimo D'Antona
Via Massimo D'Antona
110 m
Viale dei Pini
Viale dei Pini
1,6 Km
Negozi Negozi
Three Sisters
1,6 Km
Ristoranti Ristoranti
Agriturismo Collecera
2,0 Km
Font'Artana
2,8 Km
Mostra tutto

Caratteristiche

Rif.:
61159926
Piano:
1 di 2 (Piano basso)
Balconi:
2
Camere da letto:
2
Arredamento:
Assente
Condizionamento:
Assente
Mostra tutto
Prezzo Prezzo
€ 45.000
Rata mutuo Rata mutuo
€ 213 / mese
Proponi il tuo prezzoProponi il tuo prezzo

Classe Energetica

F
F
F
F
F
F
F
F
F
EP globale non rinnovabile:
272.46 kW h/m² anno
EP globale rinnovabile:
272.00 kW h/m² anno
EP invernale del fabbricato:
EP estiva del fabbricato:
Anno di costruzione:
1966
Riscaldamento:
Autonomo
Tipo impianto:
A radiatori
Tipo alimentazione:
Metano

Ti interessa visionare l'immobile?

Fissa un appuntamento  Fissa un appuntamento

Richiedi informazioni

Clicca su Leggi per aprire l'informativa
* Questi campi sono obbligatori

Calcola il tuo mutuo

Semplice e senza impegno
Anticipo

( % )
Mutuo

( % )

pochi semplici passi

inserisci i tuoi dati
Questionario completato
Grazie per aver richiesto un appuntamento senza impegno con un nostro Consulente del Credito e Assicurativo.

Hai inserito correttamente tutti i dati necessari e a breve riceverai una e-mail con un link da convalidare per inviare i tuoi dati.
Affiliato
Progetto Montesilvano D.I.
Corso Umberto I, 584 65015 Montesilvano (PE)

Il nostro staff


  • Angelo Vitali
    Affiliato

  • Maria Teresa Risorto
    Collaboratrice
Corso Umberto I, 584 65015 Montesilvano (PE)
Zona: Montesilvano
Mostra su mappa
Orari: dal lunedì al venerdì, 9.00/13.00 - 15.30/19.30; sabato 9.00/13.00 pomeriggio su appuntamento.
Affiliato
Progetto Montesilvano D.I.
Corso Umberto I, 584 65015 Montesilvano (PE)

2026 Tecnocasa Franchising S.p.A. - P. IVA 08365160152 - Via Monte Bianco 60/A 20089 Rozzano (MI). Ogni agenzia ha un proprio titolare ed è autonoma. Privacy policy | Policy utilizzo | Cookie policy