Villa singola in vendita

Città Sant'Angelo, Via della Fornace - Annunziata
€ 198.000
204 Mq 204 Mq
2 bagni 2 bagni

Villa singola in vendita

Città Sant'Angelo, Via della Fornace - Annunziata

Descrizione annuncio

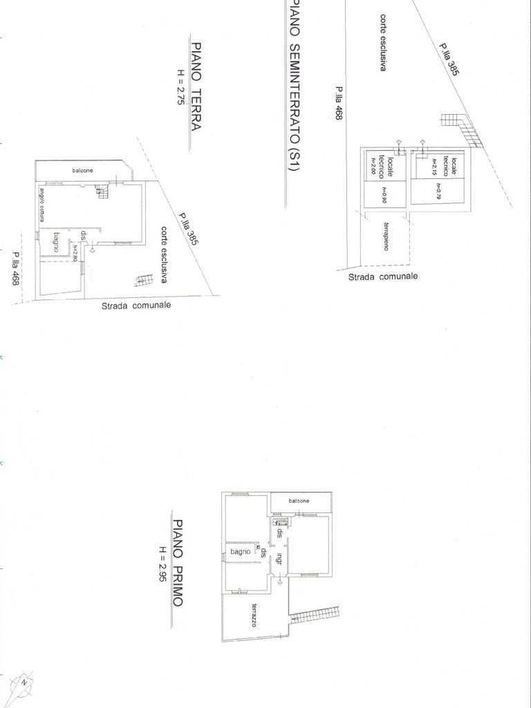
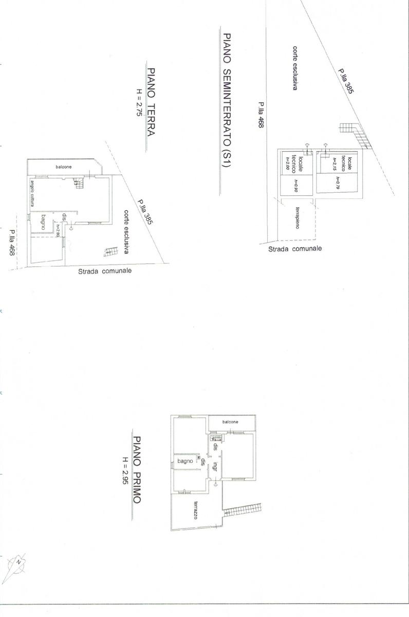
A Città Sant’Angelo casa indipendente disposta su due livelli.

Al primo terra si trova un’ampia corte esterna in parte coperta da una tettoia e in cui è possibile parcheggiare le auto. L’ingresso introduce in una luminosa zona giorno con angolo cottura. Attraverso il disimpegno si arriva alla prima zona notte con una camera matrimoniale e un bagno con doccia.

Una scala interna porta al primo piano in cui trovano spazio due camere matrimoniali, una cameretta e un secondo bagno con vasca, il tutto con affaccio su due balconi e su un’altra corte esterna.

La soluzione è stata completamente ristrutturata, ha infissi in pvc con vetrocamera, riscaldamento autonomo, climatizzazione e portoncino blindato.

Completa la proprietà un locale cantina al piano seminterrato.

Se per acquistare la tua nuova casa hai bisogno di vendere il tuo attuale immobile contattaci per una consulenza con valutazione gratuita e senza impegno.

Per ulteriori informazioni rivolgersi a: Affiliato TECNOCASA Progetto Montesilvano - Umberto I Montesilvano (PE) Tel. 0854459904 e-mail: pehn8

Mostra tutto

Nelle vicinanze

Trasporto pubblico Trasporto pubblico
Trasporto pubblico
800 m
Negozi Negozi
Negozi
860 m
Panificio D'Annunzio
870 m
Ristoranti Ristoranti
Ristoranti
720 m
Angolo d'Abruzzo
1,3 Km
Poggio del Sole
2,7 Km
Mostra tutto

Caratteristiche

Rif.:
61165852
Piano:
Su più livelli di 2
Totale piani:
2
Balconi:
2
Camere da letto:
4
Arredamento:
Assente
Mostra tutto
Prezzo Prezzo
€ 198.000
Rata mutuo Rata mutuo
€ 933 / mese
Proponi il tuo prezzoProponi il tuo prezzo

Classe Energetica

Questo immobile è esente da classe energetica
Anno di costruzione:
1991
Riscaldamento:
Autonomo
Tipo impianto:
A radiatori
Tipo alimentazione:
Metano

Ti interessa visionare l'immobile?

Fissa un appuntamento  Fissa un appuntamento

Richiedi informazioni

Clicca su Leggi per aprire l'informativa
* Questi campi sono obbligatori

Calcola il tuo mutuo

Semplice e senza impegno
Anticipo

( % )
Mutuo

( % )

pochi semplici passi

inserisci i tuoi dati
Questionario completato
Grazie per aver richiesto un appuntamento senza impegno con un nostro Consulente del Credito e Assicurativo.

Hai inserito correttamente tutti i dati necessari e a breve riceverai una e-mail con un link da convalidare per inviare i tuoi dati.
Affiliato
Progetto Montesilvano D.I.
Corso Umberto I, 584 65015 Montesilvano (PE)

Il nostro staff


  • Angelo Vitali
    Affiliato

  • Maria Teresa Risorto
    Collaboratrice
Corso Umberto I, 584 65015 Montesilvano (PE)
Zona: Montesilvano
Mostra su mappa
Orari: dal lunedì al venerdì, 9.00/13.00 - 15.30/19.30; sabato 9.00/13.00 pomeriggio su appuntamento.
Affiliato
Progetto Montesilvano D.I.
Corso Umberto I, 584 65015 Montesilvano (PE)

2026 Tecnocasa Franchising S.p.A. - P. IVA 08365160152 - Via Monte Bianco 60/A 20089 Rozzano (MI). Ogni agenzia ha un proprio titolare ed è autonoma. Privacy policy | Policy utilizzo | Cookie policy